Hoe werkt de Z-Type actieve kooldeeltjeslift?

Een emmerlift is een veelgebruikt hefapparaat dat tegelijkertijd verticaal en horizontaal kan transporteren. Het wordt gebruikt om verschillende materialen op te tillen. Z-type bekerelevator kan op grote schaal worden gebruikt in verschillende omgevingen die een zachte bediening vereisen. Momenteel wordt het vooral gebruikt voor de voeding van weeg- en verpakkingsmachines, de voeding en herselectie van kleurensorteerders, het drie- circulerend laden en lossen van automatische productielijnen, en de multi-puntvoeding van automatische weeg- en batchsystemen.
Functies
1. Wanneer de takel van het Z--type werkt, neemt de retourslag van de plank niet het werkritme in beslag, is de transportefficiëntie hoog en wordt deze niet beïnvloed door de hoge transportsnelheid.
2. Alleen pakketten kunnen worden vervoerd en het materiaal heeft een minimale afmeting.
3. Groot lagerbereik.
4. Het wordt gebruikt in combinatie met de ingangs- en uitgangstransportapparatuur om de volledige automatisering van het transportproces te realiseren en de instabiliteit te vermijden die wordt veroorzaakt door handmatige bediening.
5. Compacte structuur en kleine voetafdruk.
6. Veilig en betrouwbaar, gemakkelijk te onderhouden, lage bedrijfskosten, waardoor de transportkosten effectief worden verlaagd.
Structurele kenmerken
Trechter:Om aan de behoeften van klanten te voldoen, zijn er verschillende materialen zoals nylon, ABS, PP, roestvrij staal 304, roestvrij staal 316L, roestvrij staal 310, koolstofstaal, enz.
Ketting:Onze mechanische transportketting met roterende emmertransporteur maakt gebruik van een binnenlandse bekende merkketen en maakt gebruik van een zelfsmerende rollenbaanketting met grote steek. Daarom wordt het wrijvingsverlies van de ketting tijdens gebruik verminderd, wordt de levensduur van de ketting verlengd en worden de onderhouds- en vervangingskosten verlaagd.
Chassis:De hele machine kan worden gemaakt van koolstofstaal koudplaat elektrostatisch spuiten of roestvrijstalen structuur
Transporttype:Roterende emmertransporteur transporteert materialen in een gesloten lichaam en transporteert materialen door een hopper die aan een ketting hangt. Het modulaire ontwerp kan een breed scala aan configuraties realiseren en kan horizontaal, verticaal en horizontaal worden gecombineerd. Z-type, C-type, E-type, L-type, R-type kan ook multi-puntinvoer, multi-lossing zijn, de hele machine is volledig afgedicht, geen vervuiling, geen lekkage, netjes en schoon en flexibele samenstelling, kan worden gebruikt in een kleine ruimte. Het transport wordt verticaal en horizontaal naar binnen uitgevoerd, waardoor de transportmachines gemakkelijk te installeren en aan te passen zijn.
Technische parameter
|
Model/ |
CHZD-3 |
CHZD-6 |
CHZD-10 |
CHZD-15 |
CHZD-20 |
CHZD-25 |
CHZD-30 |
CHZD-35 |
||
|
Leveringsvolume |
100% |
m³/h |
6 |
15 |
22 |
30 |
45 |
56 |
68 |
80 |
|
75% |
4.5 |
11 |
16.5 |
22.5 |
33.5 |
42 |
51 |
60 |
||
|
Hopper |
Dou Rong |
L |
3 |
6 |
10 |
15 |
20 |
25 |
30 |
35 |
|
bak breedte |
mm |
370 |
470 |
870 |
500 |
560 |
690 |
815 |
940 |
|
|
Bak afstand |
mm |
228.6 |
330 |
|||||||
|
Ketting |
toonhoogte |
mm |
38.1 |
66 |
||||||
|
Aantal staven |
2 |
|||||||||
|
Breukbelasting enkele ketting (kN) (minimaal) |
37.6 |
90 |
||||||||
|
Tandwiel |
aantal tanden |
- |
26 |
22 |
||||||
|
Steekdiameter |
mm |
316.09 |
463.76 |
|||||||
|
Loopsnelheid van de trechter |
m/s |
Kleiner dan of gelijk aan 0,3 |
Kleiner dan of gelijk aan 0,25 |
|||||||
|
Snelheid aandrijfas |
omw/min |
Kleiner dan of gelijk aan 0,3 |
||||||||
|
maximale hefhoogte |
m |
Kleiner dan of gelijk aan 45 |
||||||||
|
Maximale horizontale transportafstand |
m |
Kleiner dan of gelijk aan 100 |
||||||||
|
totaal vermogen |
kW |
0.75~22 |
1.1~22 |
2.2~22 |
5.5~22 |
5.5~30 |
||||
Opmerking:
1. Het bakvolume in de tabel is het berekende bakvolume en het transportvolume wordt berekend op basis van de vulfactor van 0,6.
2. Hopper: ABS-trechter van voedingskwaliteit / roestvrijstalen trechter / koolstofstalen trechter
De structuur
De takel uit de Z-serie bestaat uit lopende delen, aandrijfapparaat (langzaam rotatieapparaat), bovenste apparaat, middelste behuizing en onderste apparaat.
Lopende delen ---- bestaat uit een trechter en een rolketting met huls.
Aandrijfapparaat - gebruikt een motor uit de Y-serie, een reductiemiddel en een kettingaandrijvingsreductiemiddel, enz. (elektronische bedieningsschakelaar door gebruiker-gedefinieerd).
Langzaam-lopend apparaat-met een motorreductor, gekoppeld aan een reductiemiddel en een kettingaandrijvingsreductiemiddel via een koppeling. Dit apparaat wordt doorgaans gebruikt tijdens onderhoud aan apparatuur. Dit apparaat kan door de gebruiker- worden geselecteerd.
Typen en afvoermaterialen
Dit apparaat kan worden gebruikt in een grote verscheidenheid aan omgevingen die een zachte behandeling vereisen. Z-type voeding, C-type voeding, Z-C gemengde voeding en multi-puntvoeding, multi-lossing en andere gelegenheden. Momenteel wordt het vooral gebruikt voor de voeding van weeg- en verpakkingsmachines, de voeding en her{7}}selectie van kleurensorteermachines, het drie- circulerend laden en lossen van automatische productielijnen, en de multi-puntvoeding van automatische weeg- en batchsystemen.

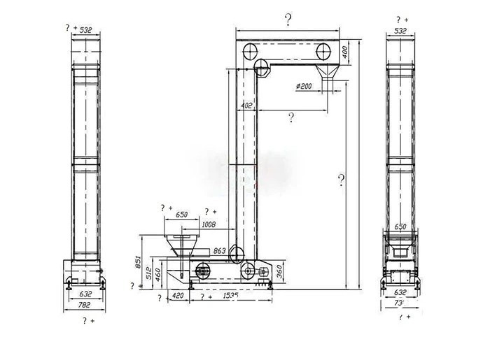
Ontwerpschema

Toepassingsbereik
Geschikt voor de petfoodindustrie, gepofte voedingsindustrie, diervoederindustrie, snoepindustrie, gedroogde en verse fruitindustrie, cosmetica-industrie, gezondheidsvoedingsindustrie, graanverwerkende industrie, metallurgische productie-industrie, chemische en farmaceutische industrie, hardware- en elektrische materialenindustrie, militaire industrie enzovoort.
Hef materiaal op van het type Z--deeltjeslift met actieve koolstof
Voedingsindustrie: koekjes, gummies, marshmallows, kleine gestoomde broodjes, pannenkoeken, kippenessence, chips, rijstnoedels, dumplings, pinda's, meloenzaden, pistachenoten, rijst, enz.
Chemische industrie: plastic korrels, actieve kool, conserveermiddelen, additieven, meststoffen, enz.
Farmaceutische industrie: capsules, tabletten, pillen, enz.
Hardware-industrie: schroeven, moeren, metalen hulpstukken, enz.

Installatie-instructies
De takel uit de Z-serie is verticaal en de fundering draagt het volledige gewicht van de takel. Daarom moet de fundering vóór installatie worden gecontroleerd.
De takel uit de Z-serie is opgedeeld in verschillende delen en wordt door de gebruiker ter plaatse geïnstalleerd. Meestal geïnstalleerd in de volgende volgorde.
1. Installeer eerst de ankerbouten op de fundering, installeer vervolgens het onderste apparaat, kalibreer de relatieve positie ervan op de fundering, zodat het referentieoppervlak (bovenste flensoppervlak) van de behuizing zich in het horizontale vlak bevindt, en bevestig het vervolgens tijdelijk op de fundering superieur.
2. Installeer de middenbehuizingen één voor één op het onderste apparaat. Over het algemeen wordt het middengedeelte met inspectiedeur geïnstalleerd op de positie van de middenbehuizing van het eerste gedeelte en moet het eerste middengedeelte worden verbonden met het bovenste apparaat (let op de steunrichting van het eerste middengedeelte). ). Sommige middensecties zijn gelast met geleidingsrails tegen-kettingafwijkingen. Dergelijke middensecties worden geleverd met een hoogte van ongeveer 2 mm. Na installatie zijn ze ook geconfigureerd met een hoogte van ongeveer 2 mm.
3. Nadat de middelste behuizing is geïnstalleerd en gekalibreerd, installeert u het bovenste apparaat. Over het algemeen moeten steuninrichtingen op de bovenste en middelste posities worden geïnstalleerd om te voorkomen dat de behuizing zijwaarts verschuift. De ondersteuningsinrichtingen moeten betrouwbaar worden bevestigd aan nabijgelegen gebouwen en het mogelijk maken dat de takel vrij in verticale richting kan worden ingetrokken. Grof canvas of geweven asbesttape en asbesttouw moeten bij elke verbindingsflens worden opgevuld om te voorkomen dat stof opstijgt.
4. Om het aandrijfplatform op het bovenste apparaat te installeren, verbindt u eerst de drie platforms met bouten om een geheel te vormen, en vervolgens schroeft of las u het hele platform en het wortelsteunkanaalstaal aan de bovenste behuizing. Las vervolgens het onderhoudsframe en de gesegmenteerde reling op het hele platform. Installeer vervolgens de voeding, de aandrijfketting en het tandwieldeksel. Nadat de kettingaandrijving is afgesteld, bevestigt u deze met bouten. Kennisgeving! ! De aandrijfbasis en het aandrijfplatform moeten aan elkaar worden gelast.
5. Installeer de loopdelen. Til eerst de staartas naar de hoogste positie en installeer vervolgens de ketting en de trechter.
6. Installeer ten slotte de linker (rechter) kap. Installeer elektrische overbelastingsbeveiligingen en elektrische beveiligingsschakelaars en sluit de transmissielijn aan op de motor van de takel.
Veelvoorkomende problemen
1. De bunkerband slipt.
Stel het handwiel van de vaste lijn af en span de hopperband.
2. Het lager is stoffig en slecht gesmeerd.
Maak de lagers schoon en voeg nieuw vet toe.
3. De transmissieriem slipt of valt eraf, of het transmissieapparaat valt uit.
Span de aandrijfriem aan om de fout van het transmissieapparaat te elimineren.
4. De trechterschroef zit los of valt eraf, en de trechter beweegt of valt eraf. Stop voor inspectie, draai de schroeven van de hopper vast en pas de positie van de hopper aan.
Voorzorgsmaatregelen
1. De granulaire bakelevator van het type Z- wordt beheerd door een speciaal persoon en de stroomschakelaar wordt regelmatig gecontroleerd.
2. Om de gebruiksveiligheid te verbeteren, moet de takel een takelbegrenzer en een slagbegrenzer installeren. Laat de katrol optillen tot op de afstand van de haspel.
3. 300mm kan de takel automatisch laten stoppen en kan ook proefhijsen uitvoeren.
4. De takel moet een lastteken hebben en het gewicht mag niet overbelast worden tijdens het heffen en dalen.
5. Nadat de takel elektriciteit begint te sturen, controleert u de werkomstandigheden van de takelbegrenzer, de slagbegrenzer en de interlockschakelaar om te zien of deze normaal zijn.
6. Vóór het heffen of landen mag de auto pas rijden nadat de bel is gegaan.
7. De industriële pellettoevoerband mag geen mensen op en neer vervoeren.
8. Nadat het werk is voltooid, moet de ophangplaat van de verticale feeder van het deeltjestype Z- op de grond vallen, vervolgens de stroomtoevoer afsluiten en de bovenste en onderste vangraildeuren sluiten.
9. Houd de omgeving van de verticale feeder van het deeltjestype Z- altijd hygiënisch.
Smeermateriaal, cyclus en werkwijze voor bakelevator (bandemmerlift)
|
Naam van smeeronderdeel |
Smeermateriaal |
Smeercyclus |
Smeermethode |
|
Handelswijze |
Waterbestendig vet |
200 uur |
met een smeerapparaat |
|
Achtervang |
Waterbestendig vet |
50 uur |
met een smeerapparaat |
|
Spanbout |
Waterbestendig vet |
500 uur |
smeren |
|
Snelheidsreductiemiddel |
Volgens de specificatie van het uitgeruste verloopstuk |
6 maanden |
giet |
|
Elektromotor |
Waterbestendig vet |
6 maanden |
giet |
Onze garanties en diensten
Voorverkoopservice:
- Begeleid klanten bij het kiezen van het juiste apparatuurmodel.
- Stuur technisch en technisch personeel op tijd naar de productielocatie om de locatie voor klanten te plannen en redelijke processen en oplossingen te ontwerpen.
- We kunnen producten ontwerpen en vervaardigen volgens de speciale behoeften van klanten om aan de verschillende behoeften van investeerders te voldoen
Op verkoopservice:
- Strikte inspectie van producten voordat ze de fabriek verlaten
- Verzending volgens contract
After--service:
- De belangrijkste garantieperiode van de door ons bedrijf verkochte apparatuur is één jaar (behalve voor defecten of schade veroorzaakt door menselijke factoren, brandstoffactoren of onweerstaanbare natuurverschijnselen, en kwetsbare onderdelen vallen niet onder de garantie: brandstofinjectoren, pompkoppen, lichtgevoelige ogen, enz.).
- Als het falen van de apparatuur wordt veroorzaakt door menselijke factoren, worden de kosten in rekening gebracht volgens de fabrieksprijs.
- Nadat u de garantieverklaring heeft ontvangen, antwoordt u binnen 2 uur. 24 uur technische begeleiding om problemen op te lossen.
Over Odifei-bedrijf

Zhengzhou Odifei Machinery Equipment Co., Ltd. richt zich al 17 jaar op transportapparatuur. De hoofdactiviteit is: verticale lift met spiraaltrilling, lamellentoevoer, kettingplaattransporteur, lamellentransportband, schrapertransporteur, grote hoekbandtransporteur, schroeftransporteur, kettingbaktransporteur, TD-bandbaklift, TH-ringkettingbaklift, NE baklift, NSE baklift en ander volledig assortiment bakliften. TD75 bandtransporteur (of bandtransporteur), mobiele transportband, bandtransporteur met grote hellingshoekribben; schroeftransporteur, asloze schroeftransporteur; lichte, middelzware en zware kettingplatentransporteur; kettingbaktransportmachine, SCD trogklinkertransporteur; horizontale dubbelassige menger; lichte, middelzware en zware plaatinvoer; GZG motortrillingsvoeder; trommelzeef, asloze trommelzeef;
In 2010 betrad het R&D-team van ons bedrijf de recyclingindustrie voor grondstoffen en ontwikkelde achtereenvolgens geschubde transportbanden voor de behandeling van huishoudelijk afval, screening en sortering van asloze trommelzeven voor huishoudelijk afval, lamellentoevoerers voor bouwafval en geschubde schroottransportbanden met elektrische boogovens, die niet alleen creëren, maar ook objectieve sociale en ecologische voordelen creëren, en een onmisbaar onderdeel zijn van de keten van de recyclingindustrie van hulpbronnen.
Zhengzhou Odifei Machinery Equipment Co., Ltd. heeft voortdurend technologische innovatie uitgevoerd in de geest van uitmuntendheid en heeft verschillende praktische nieuwe producten ontwikkeld. Het product is geavanceerd in ontwerp, goed in productie, betrouwbaar in prestaties, heeft een internationaal geavanceerd niveau, verkoopt goed in binnen- en buitenland en heeft tot doel marktleider te zijn!
Veelgestelde vragen
Vraag: Bakelevators bestaan uit een aantal componenten
A: Hopper: bevestigd op de tape (of tractieketting), er zijn drie soorten
Diepe bak - geschikt voor losse materialen;
Ondiepe emmer - materialen met hoge viscositeit;
Driehoeksemmer - zware en klonterige materialen
Shell: Ingebouwde-in transmissie en stopper.
Lichaam: De dunne stalen plaat is in een vierkante schaal gelast en de installatie is afwijkend.
Onder: Installeer het spanapparaat.
Vraag: Er zijn verschillende soorten bekerelevators
A: 1. Volgens het lay-outformulier: het kan worden onderverdeeld in verticaal type en hellend type
2. Volgens verschillende ontladingsmethoden: het kan worden onderverdeeld in centrifugaal, zwaartekracht en hybride.
3. Volgens verschillende oplaadmethoden: het kan worden onderverdeeld in graaftype en injectietype.
4. Volgens de structuur van de trechter: deze kan worden verdeeld in een ondiepe emmer, een diepe emmer en een driehoekige emmer.
5. Volgens verschillende tractiecomponenten: het kan worden onderverdeeld in tape en stalen ketting.
Vraag: Wat is het werkingsprincipe van de emmerelevator
A: Het transportwerkingsprincipe van de emmerelevator is als volgt: de trechter haalt het materiaal uit de opslag eronder, tilt het naar boven met de transportband of ketting, draait naar beneden nadat het bovenste wiel is omzeild en de emmerelevator dumpt het materiaal in de gleuf. De aandrijfriem van de door een riem-aangedreven bakelevator bestaat doorgaans uit een rubberen riem, die wordt geïnstalleerd op de onderste of bovenste aandrijftrommel en de bovenste en onderste omleidingstrommels. De door een ketting-aangedreven bakelevator is over het algemeen uitgerust met twee parallelle transmissiekettingen, met een paar transmissietandwielen aan de boven- of onderkant, en een paar omleidende tandwielen aan de onder- of bovenkant. Bekerelevatoren zijn over het algemeen uitgerust met behuizingen om te voorkomen dat stof in de bekerelevatoren rondvliegt.
Vraag: Wat zijn de voor- en nadelen van bekerelevators?
EEN: Voordelen:
1. De structuur is eenvoudig, de laterale afmetingen zijn klein en het vloeroppervlak is klein.
2. De hefhoogte is groot, de transportcapaciteit is goed, het lichaam is volledig omsloten en de milieuvervuiling is klein.
3. Laag stroomverbruik.
Tekortkoming:
1. Het is gemakkelijk te blokkeren bij overbelasting en de trechter is gemakkelijk te dragen.
2. Het is alleen geschikt voor het transporteren van poedervormige, korrelige en kleine en middelgrote- bulkladingen, zoals graan, steenkool, zand, enz.
3. De goederen kunnen niet in horizontale richting worden vervoerd.
Vraag: Bent u een fabriek of een handelsbedrijf? Bij het bouwen van eenZ-type lift met actieve kooldeeltjes, Voor welke andere materialen zijn bekerelevators geschikt?
A: Wij zijn een fabriek, opgericht in 2007, gespecialiseerd in de productie van verticale triltakels, verticale trilliften, emmerliften, bandtransporteurs, schaaltransporteurs, schroeftransporteurs, enz. De emmerlift kan worden gebruikt in de chemische industrie, de keramische industrie, de voedingsindustrie, de metallurgische industrie, enz.
Vraag: Hoe zit het met reserveonderdelen?
A: Wij leveren altijd reserveonderdelen tegen kostprijs en geven u een lijst met reserveonderdelen wanneer u de machine koopt.
Vraag: Gaat u de Z--type lift met actieve kooldeeltjes testen vóór levering?
A: Ja, we zullen elke machine en productielijn vóór levering testen en de werkvideo naar u sturen. U kunt dit ook vóór de bezorging bij ons navragen.

Inkoopproces

Z-Type baklift (C-Type lift) Gebruikers kunnen de configuratie kiezen:
Chassis: Half-gesloten chassis - stof-dicht chassis - luchtdicht chassis - roestvrijstalen chassis - spuitchassis van koolstofstaal.
Hopper: roestvrijstalen trechter - koolstofstalen trechter - plastic trechter van voedingskwaliteit.
Aandrijving: Explosie-veilige reducer, gewone reducer.
Tandwielen: Tandwielen van gelegeerd staal-roestvrijstalen tandwielen.
Ketting: ketting van gelegeerd staal - roestvrijstalen ketting.
Controle: handmatige start en stop, automatische start en stop, frequentieomzettingsregeling.
Overige: de hele machine is explosie-veilig, ingebouwd-in geforceerd ventilatiesysteem, automatisch trechterreinigingssysteem, automatisch tanksysteem.
Selectietips
1. De vorm van het materiaal: of het materiaal poeder, korrelig of klein blok is.
2. Fysische eigenschappen van het materiaal: of het materiaal adsorptie of viscositeit heeft en of het water bevat.
3. Aandeel materialen: Over het algemeen worden de parameters van de bakelevator ontworpen en berekend voor materialen met een soortelijk gewicht van minder dan 1,6. Als het soortelijk gewicht van materialen te groot is, moeten de trekkracht en de treksterkte van het transmissiedeel worden berekend.
4. Het leveringsvolume per tijdseenheid.
Als u geïnteresseerd bent in een Z-type lift met actieve kooldeeltjes, neem dan gerust binnen 24 uur contact met ons op!
Welkom bij uw bezoek aan onze fabriek!!!
Populaire tags: z-type lift met actieve kooldeeltjes, China z-type lift met actieve kooldeeltjes fabrikanten, leveranciers, fabriek










